
- Origin, Protrusion, Extrude, Revolve, Hole, Group, Pattern, Fillet, Chamfer, Shell, Rib, Draft

An example of an assembly.

An example of a plastic part using Wildfire Student Edition.
The Draft angles for molding have been slightly exaggerated.

This is the drawing of the plastic part model.
The drawing includes a Cross Section view (X).
Some dimensions and text have been omitted for clairity.

This is a cap for a detergent bottle.
The threads were made as a helical sweep ( Protrusion id 214 ).

This is a Sheet Metal part modeled as the finished product.

This is the Sheet Metal part flatened as it would be during manufacturing, before bending.

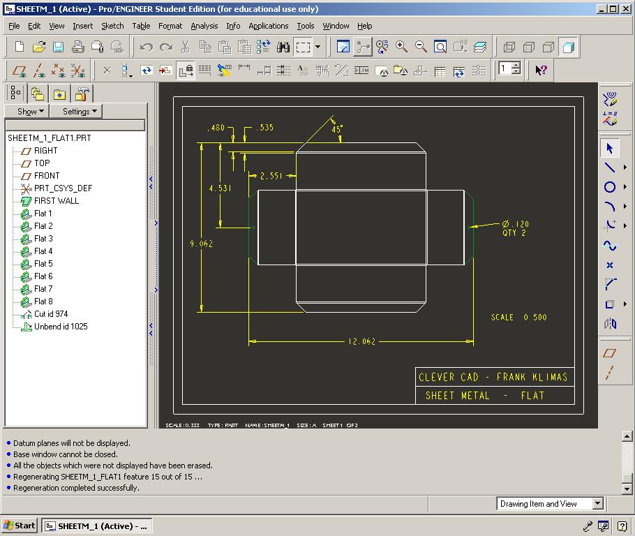
This is the drawing of the flatened Sheet Metal part.

This is the drawing of the formed Sheet Metal part.

Back to main page